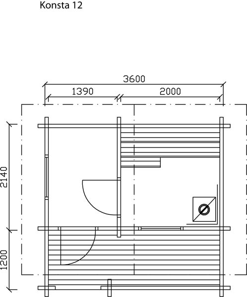
Konsta 12
Vakiomallista poiketen kuvan malli varustettu 180cm terassilla+katon jatkeella.
Tuotetiedot
70
360 x 214
+ terassi 120/1800
Lisätiedot
Valmissaunat ja aitat toimitetaan valmiiksi koottuina, 70x145 mm. höylähirrestä.
Saunat varustettu kiukaalla, tyyppihyväksytyllä hormilla, 22 litran hormisäiliöllä ja kiuaskivillä.
Toimitussisältö
Ovissa ja ikkunoissa lämpölasit. vakiomalleissa katemateriaalina musta rullahuopa.
Palahuopa lisähintaan.
Terassi + terassin katon jatke (180cm.) lisähintaan.
Yläpohjan eristys 50mm. Alapohja eristämätön


